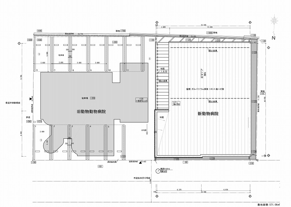
正確に言えば動物病院の建替えですが、幸いにも既存病院の敷地が広かった為、敷地内での移転の形になっています。
当初は、営業しながらの全面改修で既存病院を生かす計画をしていました。しかし既存病院の建物の耐用年数も気になるところでありますし、工期が長くなる事・飼主さん+動物、病院側の精神的負担も少なくない事が予想されました。そこで思い切って院長が建替えを決断されました。敷地内での移転(建替)の大きなメリットは営業しながら新しい病院を新築し、完成したらスムーズに引っ越しができる事。仮店舗の費用も省け、既存病院を刷新してバージョンUPできることです。工事期間中の駐車場の確保は必要となりますが、旧病院から新病院へスムーズに移管することが可能な一つの手法です。

