小さく始めて大きく育てる動物病院のために、短期×低コストの等身大開業プランをご用意しました。ACプランの質を、安心の定額と短工期で提供する、仕様を厳選した基本パッケージです。
現在、モニター特別価格(内装工事費40万円/坪・消費税別)でご提供しております。テナントで新規開業をご検討の獣医師の方は、ぜひご相談ください。












| 開業形態 | テナント面積25坪以上(左記面積未満は要相談)申し込み後、テナント物件調査を行い現場確認後可否検討 |
|---|---|
| 対象用途 | 新規開業テナント動物病院に限定 |
| 対象期間 | 2026年3月下旬までに竣工予定 |
| 対象地域 | 関東(東京都、埼玉県、千葉県、神奈川県、栃木県、茨城県、群馬県)限定 |
| 募集人数 | 先着6名 |
| 募集期間 | 2025年9月~12月まで |
| 設計監理料 | 施工工事費用の10%(消費税別)、工事費1000万円以下は定額100万円 |
| 工事範囲 | テナント内装工事 内装工事以外は別途工事 |
● 酸素配管工事(酸素配管3ヵ所:50万円程度)
● 動物病院サイン工事(カルプ文字+診療案内:50万円程度)
● 解体工事(既存テナント残置物解体工事)
● テナント外装工事(外装塗装・張替え・庇・外部床工事等)
● テナント外壁廻りのサッシ、建具工事(外部に面するサッシ・出入口・自動ドア設置等)
● 駐車場、外構工事
● 防災工事
● 防犯工事(セコム等)
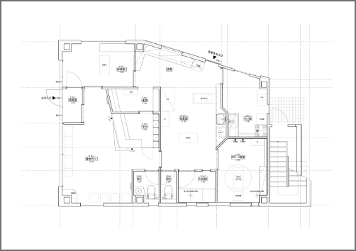
● 25坪テナント
工事費計 1250万円(消費税別)+設計監理料
サイン 50万円/酸素配管 50万円(3ヶ所)/防災工事50万円/外装工事 100万円
25坪×40万円=1000万円
設計監理料 125万円(消費税別)
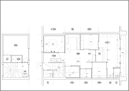
● 30坪テナント
工事費計 1450万円(消費税別)+設計監理料
サイン 50万円/酸素配管 50万円(3ヶ所)/防災工事50万円/外装工事 100万円
30坪×40万円=1200万円
設計監理料 145万円(消費税別)
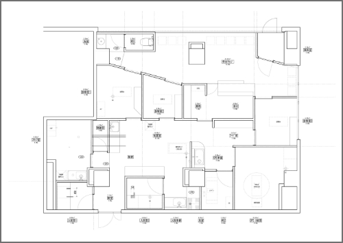
● 35坪テナント
工事費計 1650万円(消費税別)+設計監理料
サイン 50万円/酸素配管 50万円(3ヶ所)/防災工事50万円/外装工事 100万円
35坪×40万円=1400万円
設計監理料 165万円(消費税別)
テナント基本インフラ(水道20㎜以上、電気引込有、電気容量125A以上、排水設備有、ガス引込有)が整っていること
● 設計監理契約からテナント引き渡しまで3ヵ月
● プレファブ化とモジュール化で工期短縮:25坪動物病院工期1ヶ月程度
● 工期短縮に連動して人工数減による工事費用削減