
現在、船橋法典のキズナ犬猫クリニックで診察しながら拡張リニューアルを行なっています。既存の動物病院は2017年に52.02㎡(15.7坪)のテナントで開院しました。動物病院としては狭いテナントでしたので全ての部屋がコンパクトで設置する医療機器を想定し設計しました。完成から9年経ちますが無駄な物を置かず狭いスペースを有効活用いただき今まで診察してこられたとの事でした。
設計当初よりもう少し広いテナントだったら、、、お隣のテナントも一緒に借りることが出来れば倍の面積になり自由度の高い設計ができるのでは無いかなどと話しなが計画を進めていました。

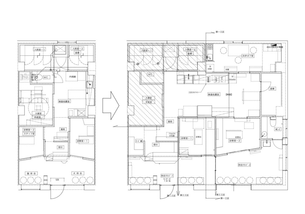
久しぶりに院長先生から御連絡があり「隣のテナントが空いたので拡張してリニューアルしたい」とのお話がありました。既存病院は待合部分を伸ばし診察室を増設し処置室を広げて・・・などと当初から拡張前提で利用の仕方を描いていたのですが、いざ倍の面積にるとまた違った使い方にしたくもなるものです。診察の数を増やすのではなく診察室を広くする方向で構想が進みました。
工事は3工区に分け、お打ち合わせの上、部屋の機能を転用して進めてまいります。現在一期工事が完了しただけですが二期工事、三期工事と工事が進んでいくのを楽しみにしています。

一期工事完成間近
広い診察室

陶芸家の手洗いボウル取付間近

二期工事側から竣工部分を見る